連接件模型
Connector Model
Connector Model
聯系APAS / Contact us
- 地址:天津市西青經濟技術開發區賽達國際工業城A3-2.
- 郵箱:lxc@apas.com.cn
- 電話:022-87920088
- 傳真:請聯系網絡管理員
- 郵編:300385
- 咨詢熱線:13702119190(24小時服務熱線)
連接件模型
/ Connector Model

30系列鋁型材大型鑄鋁角件3d模型
產品描述 / Name
30系列6060規格鋁型材鑄鋁角碼適用于30系列3060、6060(雙槽)型材之間的固定連接,可以下載鑄鋁角碼SLDWORKS三維模型進行鋁型材框架的設計組裝;
022-87920099
可以根據需求進行設計加工,提供上門安裝服務;可以根據特殊需求進行鋁型材開模定制。
* 免費提供工業鋁型材選型手冊 →點擊咨詢
內容來源:http://www.hongjiayoumotor.cn 作者:武將 發布日期:2020年04月10日 10時49分 閱讀次數:4039 次
|
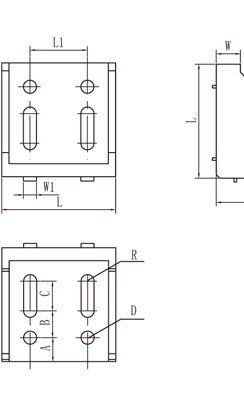
該規格鋁型材大型鑄鋁角件適用于30系列3060或6060規格鋁型材之間的緊固連接,起固定支撐作用;該規格鑄鋁角件兩側各有四個工藝安裝孔,緊固能力強,適用于受強力或振動的型材與型材之間連接點的支撐與固定; |
![]() ![]()
|
| 30系列大型鑄鋁角件主要適用于30系列3060、6060等規格鋁型材之間的緊固或連接,連接強度高;鑄鋁角件相對于型材角件對比,物理強度高,但韌性相對較低,在低溫環境下受強大扭力時可能會發生炸裂現象; |
|
槽型規格
|
L(mm)
|
L1(mm)
|
W(mm)
|
W1(mm)
|
A(mm)
|
B(mm)
|
C(mm)
|
D(mm)
|
R(mm)
|
材質
|
訂貨編號
|
|
槽8 |
58
|
30
|
12
|
5.2
|
15
|
16
|
11.5
|
φ8.5
|
4.25
|
鑄鋁
|
CE-SB6060-8
|
聯系APAS/ Contact us
天津艾普斯工業鋁型材股份有限公司
聯系電話:022-87920088
企業傳真:(避免惡意廣告)請聯系該企業網絡管理員
服務熱線:13702119190 (24小時服務熱線)
Q Q:534973906
企業郵箱: lxc@apas.com.cn
企業地址:天津市西青經濟技術開發區賽達國際工業城A3-2
聯系電話:022-87920088
企業傳真:(避免惡意廣告)請聯系該企業網絡管理員
服務熱線:13702119190 (24小時服務熱線)
Q Q:534973906
企業郵箱: lxc@apas.com.cn
企業地址:天津市西青經濟技術開發區賽達國際工業城A3-2
采購意向留言:* 為必填















QQ咨詢
電話聯系
聯系電話

在線留言
樣冊下載
