連接件模型
Connector Model
Connector Model
聯系APAS / Contact us
- 地址:天津市西青經濟技術開發區賽達國際工業城A3-2.
- 郵箱:lxc@apas.com.cn
- 電話:022-87920088
- 傳真:請聯系網絡管理員
- 郵編:300385
- 咨詢熱線:13702119190(24小時服務熱線)
連接件模型
/ Connector Model

4545規格雙槽135度型材角件3d模型
產品描述 / Name
45規格135度雙槽鋁型材角碼適用于雙槽結構如4590或9090規格鋁型材45度或135度框架結構的組裝連接,可以下載型材角碼SLDWORKS三維模型進行框架結構的設計組裝;
022-87920099
可以根據需求進行設計加工,提供上門安裝服務;可以根據特殊需求進行鋁型材開模定制。
* 免費提供工業鋁型材選型手冊 →點擊咨詢
內容來源:http://www.hongjiayoumotor.cn 作者:武將 發布日期:2020年03月30日 11時01分 閱讀次數:2311 次
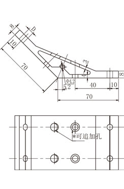
| 4545規格135度雙槽型材角碼適用于45系列4590或9090規格鋁型材之間45度或135度結構緊固連接,起固定支撐作用,角碼兩側各有兩個安裝工藝孔,可以搭配T型螺栓及法蘭螺母配合使用; |
![]() ![]()
|
| 135度雙槽型材角碼屬于6063-T5系列鋁鎂合金材料,表面經過陽極氧化處理具有較高的耐腐蝕能力,適用于特殊的工業生產環境之中;鋁型材角碼屬于定制型產品,靈活性非常高,最大尺寸為6m,可以根據使用需求進行切割定制,并可以根據安裝需求進行工藝孔加工處理; |
|
適用型材
|
L(mm)
|
D(mm)
|
材質
|
訂貨編號
|
|
90*
|
86
|
φ8.5
|
6063-T5
|
CE-L7070-4586
|
聯系APAS/ Contact us
天津艾普斯工業鋁型材股份有限公司
聯系電話:022-87920088
企業傳真:(避免惡意廣告)請聯系該企業網絡管理員
服務熱線:13702119190 (24小時服務熱線)
Q Q:534973906
企業郵箱: lxc@apas.com.cn
企業地址:天津市西青經濟技術開發區賽達國際工業城A3-2
聯系電話:022-87920088
企業傳真:(避免惡意廣告)請聯系該企業網絡管理員
服務熱線:13702119190 (24小時服務熱線)
Q Q:534973906
企業郵箱: lxc@apas.com.cn
企業地址:天津市西青經濟技術開發區賽達國際工業城A3-2
采購意向留言:* 為必填















QQ咨詢
電話聯系
聯系電話

在線留言
樣冊下載
